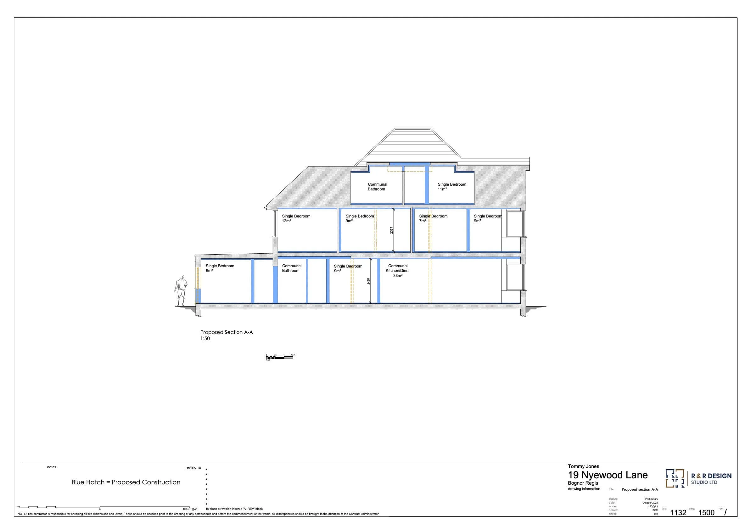
Nyewood LaneClient - Residential R&R were appointed to gain planning permission to convert an existing guest house into a 15 bedroom H.M.O.Contact Value - £200,000 View fullsize View fullsize View fullsize View fullsize View fullsize View fullsize Start your project. Name * Email Phone Number * Message Thank you!